Cenově dostupná vpusť kompaktních rozměrů. Límec pro hydroizolační nebo bitumenové fólie, provedení průtoku vodní hladina. Vyrobená z PP s plastovým nebo nerezovým rámečkem, volitelný design mřížky, lze zabudovat pro boční odtok D 50.
Podrobné info
Instalace |
|
| Kotvení | betonáž |
|---|---|
| Připojení spodní | ne |
| Připojení boční | D50 |
Parametry |
|
| Model | PVB 50 L |
| Vyrobeno | Česká republika |
| Záruka | 2 roky |
| Značka | Chuděj |
| Určení | interiér, exteriér |
Zatížení |
|
| Třída zatížení | K3 |
| Nosnost | 0,3 t |
| Norma | EN 1253 |
Rošt |
|
| Otvory | ano |
| Uchycení | šroubové |
| Antikorozní ochrana | nerez |
| Materiál roštu | ocel / polypropylen |
| Barva | stříbrná |
| Tvar | hranatý |
| Rozměry | 100 × 100 mm |
Vpusť |
|
| Materiál vpusti | polypropylen |
| Barva | šedá, bílá |
| Tvar | kruhový |
| Výška | 95 – 165 mm |
Parametry |
|
| Původ | Vyrobeno v ČR |
| Záruka | 2 roky |
| Značka | Chuděj |
| Parametry produktu: | |
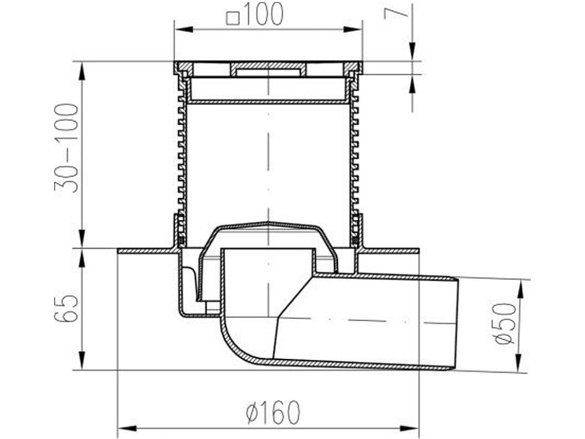
Chuděj PVS 50 L je spodní podlahová vpusť určená pro technické prostory, koupelny, kuchyně apod. Límec vpusti lze použít pro napojení hydroizolační nebo bitumenové fólie. Třída zatížení K3, tepelná odolnost do 90 °C, zkoušeno dle normy EN 1253. Lze zabudovat do potrubí D 50.
Volitelný výběr mřížky umožňuje volbu ze čtyř různých provedení designu. Stříbrná mřížka je vyrobena z nerezové oceli DIN 1.4301 o síle 1,5 mm nebo z plastu, které zaručují odolnost vůči korozi, okolnímu namáhání a rozdílným teplotám vody.
Podlahová vpusť PVB 50 L obsahuje provedení průtoku vodní hladina (30 - 42 l / min), která zabraňuje zpětnému šíření zápachu z kanalizace. Tělo vpusti je vyrobeno z polypropylenu. Výšku vpusti lze uživatelsky zkrátit pomocí pilky v rozmezí 95 – 165 mm.
Náhradní nástavec pro podlahové vpusti Chuděj v celoplastovém provedení nebo s nerezovým rámečkem o rozměru 100 x 100 mm.
Opcionális 96 x 96 mm-es rács Chuděj padlólefolyókhoz, DIN 1.4301 rozsdamentes acélból, 1,5 mm vastag. Méretek 100 x 100 mm.
Plastové sítko na zachytávání nečistot podlahových vpustí Chuděj s nástavcem 100 x 100 mm.
Pachový uzávěr z plastu slouží proti zabránění zpětnému šíření zápachu z kanalizace podlahových vpustí Chuděj.
Těsnící o-kroužek v rámci příslušenství nerezových žlabů a podlahových vpustí Chuděj. Průměr činí 90 mm, tloušťka 3,5 mm.














Hledáte příslušenství k produktům ve vašem košíku?
Je vám k dispozici v této nabídce.
Ne, nejprve si vytvořte objednávku přes e-shop, jen tak zajistíme dostupnost materiálu při osobním vyzvednutí.
Samozřejmě a rádi :)
Založte si Buildex účet, my Vám dáme 100 Kč na první objednávku a aktivujeme další výhody.
My, společnost Buildex Group s.r.o., IČO 5362431 používáme soubory cookies k zajištění funkčnosti webu a s Vaším souhlasem i mj. k personalizaci obsahu našich webových stránek. Kliknutím na tlačítko „Rozumím“ souhlasíte s využívaním cookies a předáním údajů o chování na webu pro zobrazení cílené reklamy na sociálních sítích a reklamních sítích na dalších webech.
Číst dále Méně
Maximálně pohodlné prohlížení na míru. To díky sušenkám dokážeme zařídit. Košík si bude pamatovat váš nákup, bez odhlášení vám nehrozí otravné zadávání údajů a zobrazovat se vám bude jen relevantní obsah. O co se s námi podělíte je zcela ve Vaší režii, vše bude ale v maximálním bezpečí.
Nezbytná data pro správné fungování stránky, která musí být vždy povolena.
Pomáhají nám pochopit, co by vás mohlo zajímat, na čem naše stránky prohlížíte, co nám na webu nefunguje a podobně.
Umožňují zobrazovat vám vhodný obsah na základě produktů, článků a stránek, které jste u nás navštívili.
Díky nim uvidíte na reklamních místech u nás a na jiných sítích to, co by vás mohlo zajímat a nikoliv nemístné, náhodné kampaně.
Foto - Vpusť Chuděj PVB 50 L
Foto - Vpusť Chuděj PVB 50 L
Foto - Vpusť Chuděj PVB 50 L
Foto - Vpusť Chuděj PVB 50 L
Foto - Vpusť Chuděj PVB 50 L
Foto - Vpusť Chuděj PVB 50 L
Foto - Vpusť Chuděj PVB 50 L
Foto - Vpusť Chuděj PVB 50 L
Foto - Vpusť Chuděj PVB 50 L
Foto - Vpusť Chuděj PVB 50 L
Foto - Vpusť Chuděj PVB 50 L
Foto - Vpusť Chuděj PVB 50 L
Foto - Vpusť Chuděj PVB 50 L
Foto - Vpusť Chuděj PVB 50 L
Diskuze
Položit otázkuSkrýt